В товарах В каталоге запчастей

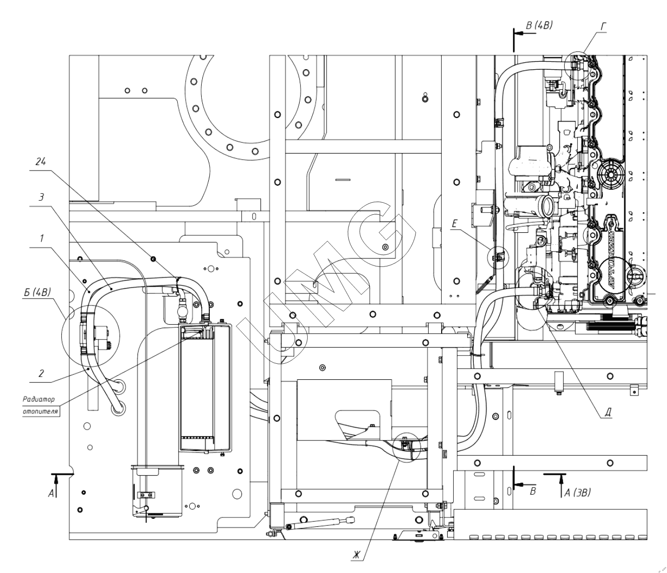
E330C Var 2. Подключение отопителя 202.25.00.00.000

zoom-in zoom-out enlarge shrink circle-right circle-left file-text2 info cart
1
2
3
24
Позиция на иллюстрации Заводской номер детали Название детали
1 202.25.00.00.001 Рукав 16х25
2 202.25.00.00.002 Рукав 16х25
3 202.25.00.00.003 Рукав 16х25
7 225-40-87.25.003 Ниппель
12 000026400125 01 Болт
14 000026410608 01 Гайка
16 000026440205 01 Шайба
18 000026440608 01 Шайба
22 000923820303 01 Хомут
23 000923820042 01 Скоба резиноармированная
24 000923820105 01 Кабельный хомут
АвтоКаталог-онлайн предоставлен Компанией АвтоСофт