В товарах В каталоге запчастей

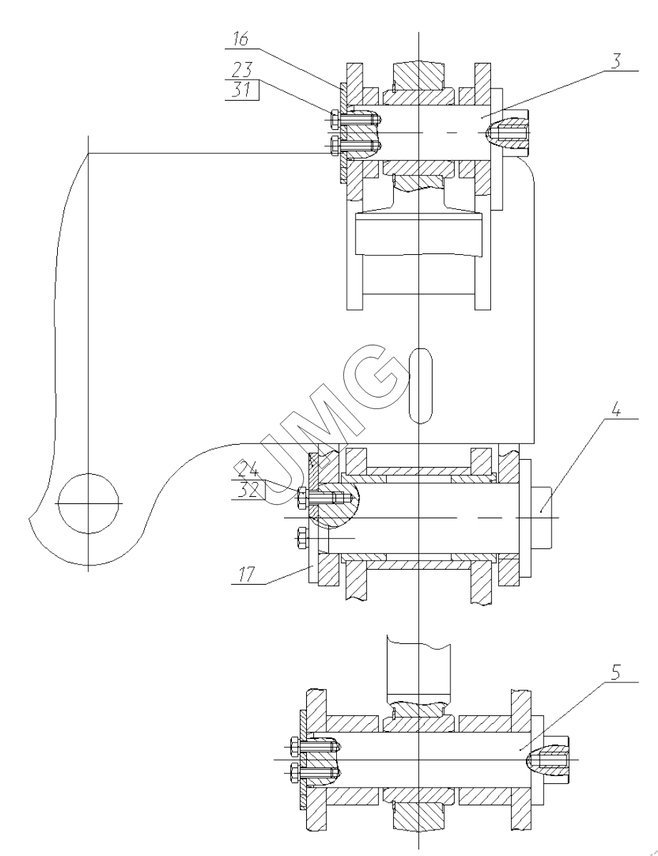
E170W. Установка отвала. 160-00-50.70.000

zoom-in zoom-out enlarge shrink circle-right circle-left file-text2 info cart
3
4
5
16
17
23
24
31
32
Позиция на иллюстрации Заводской номер детали Название детали
3 160-00-50.70.030 Палец в сборе
4 160-00-50.70.040 Палец в сборе
5 160-00-50.70.050 Палец в сборе
7 160-00-50.71.100 Отвал в сборе со втулками
8 160-00-50.70.090 Установка втулок гидроцилиндра отвала
16 130-00-80.00.008 Шайба упорная
17 130-00-50.00.002 Шайба торцевая
23 000026400230 01 Болт
24 000026400530 01 Болт
31 000026440206 01 Шайба
32 000026440209 01 Шайба
40 000027400001 01 Масленка
41 000027401063 01 Колпачок с язычком для прессмасленок
АвтоКаталог-онлайн предоставлен Компанией АвтоСофт