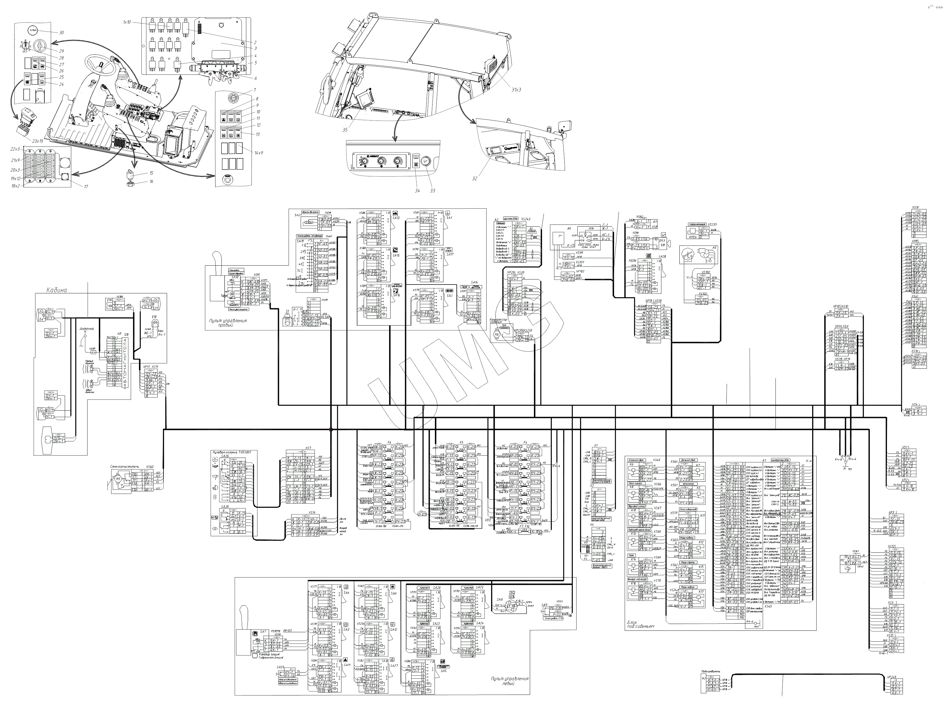
WХ-200 (2017). 202030600000 01 Электроуправление в кабине
1
2
3
4
5
6
7
8
9
10
11
12
13
14
15
16
17
18
19
20
21
22
23
24
25
26
27
28
29
30
31
32
33
34
35
36
37
38
39
40
41
42
| Позиция на иллюстрации | Заводской номер детали | Название детали | |
|---|---|---|---|
| 1 | 00092320007201 | Реле | |
| 2 | 00092320006801 | Реле | |
| 3 | 00010006000201 | Контроллер | |
| 4 | 00092320019201 | Реле | |
| 5 | 20203060000100 | Кронштейн контроллера | |
| 6 | 00010260007901 | Штекер | |
| 7 | 00092060031701 | Выключатель аварийный с кнопкой | |
| 8 | 00092060025301 | Bыключатель | |
| 9 | 00092060025201 | Bыключатель | |
| 10 | 00092060025101 | Bыключатель фары | |
| 11 | 00092060026701 | Переключатель | |
| 12 | 00092060026601 | Переключатель | |
| 13 | 00092060026801 | Переключатель | |
| 14 | 00092060020601 | Заглушка | |
| 15 | 00092311370601 | Выключатель блокировки сервоуправления | |
| 16 | ГайкаM16х1.5-6H.5.016 | Гайка | |
| 17 | 00010260008001 | Штекер | |
| 18 | 00092300002901 | Предохранитель | |
| 19 | 00092300004101 | Предохранитель | |
| 20 | 00092300002801 | Предохранитель | |
| 21 | 00092300003201 | Предохранитель | |
| 22 | 00092300001601 | Блок предохранителей | |
| 23 | 00092060026101 | Коннектор выключателя | |
| 24 | 00092060025601 | Выключатель | |
| 25 | 00092060025401 | Bыключатель | |
| 26 | 00092060027001 | Переключатель | |
| 27 | 00092060026901 | Переключатель | |
| 28 | 00092311370901 | Переключатель семипозиционный | |
| 29 | 00092060460701 | Выключатель | |
| 30 | 00092311370801 | Резистор | |
| 31 | 00092487230501 | Фара | |
| 32 | 00092400006601 | Плафон | |
| 33 | 00092300000701 | Прикуриватель | |
| 34 | 00092060026501 | Переключатель | |
| 35 | 00010260100501 | Дисплей | |
| 36 | 00009000017001 | Жгут проводов | |
| 37 | 00009000023001 | Жгут проводов | |
| 38 | 00009000008001 | Жгут проводов | |
| 39 | 00009000014001 | Жгут проводов | |
| 40 | 00009000022001 | Жгут проводов | |
| 41 | 00009000015001 | Жгут проводов | |
| 42 | 00042650113001 | Жгут проводов |