Товары
Каталог запчастей
Личный кабинет
Авторизация
Портал для заказа запасных частей
В товарах
В каталоге запчастей
Внимание!!! Сайт только для тестирования.
Каталоги запчастей к технике UMG
ЭКСМАШ
E220C
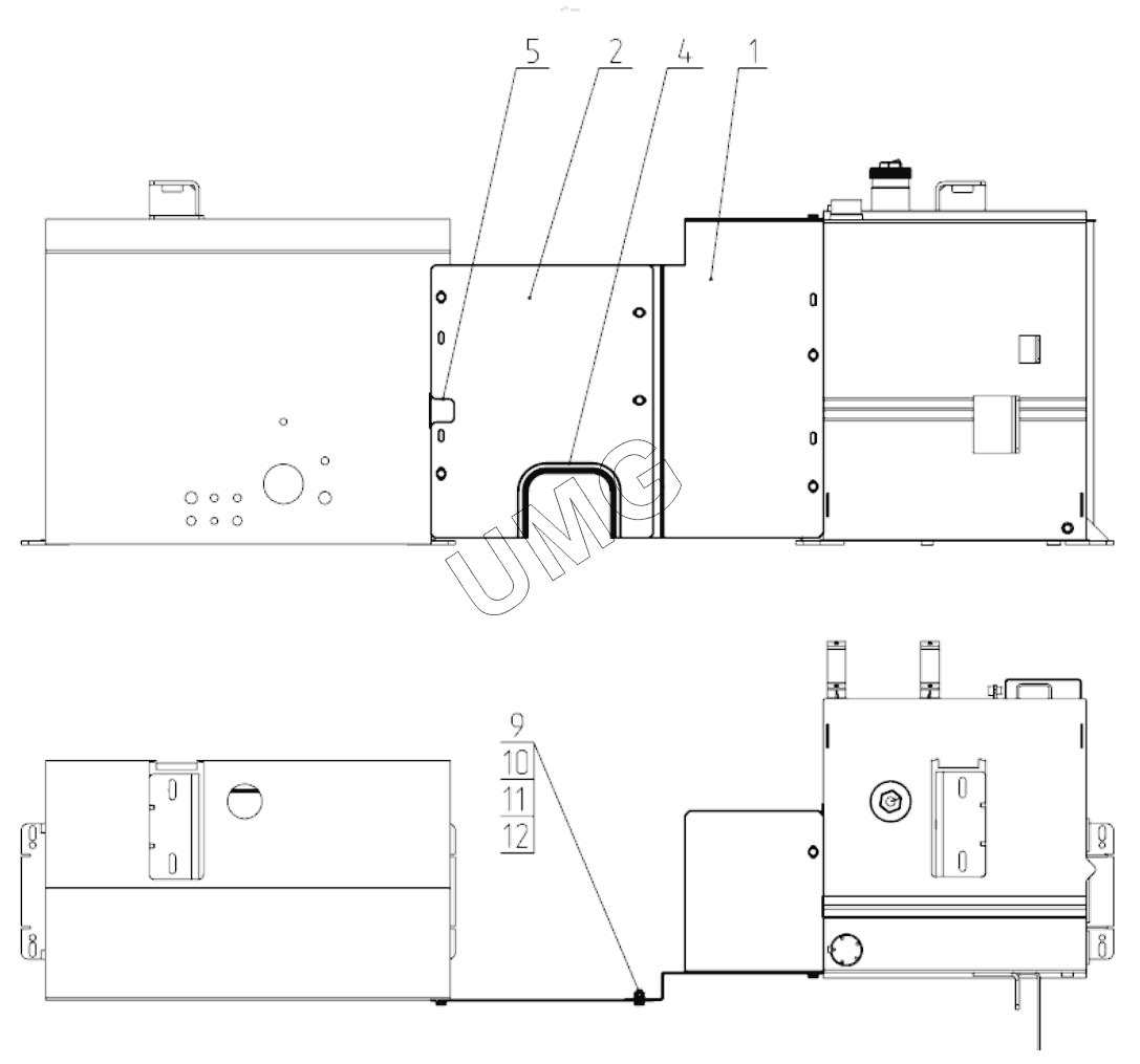
175-20-28.09.000 Установка перегородок
E220C. 175-20-28.09.000 Установка перегородок
zoom-in
zoom-out
enlarge
shrink
circle-right
circle-left
file-text2
info
cart
1
2
4
5
9
10
11
12
Позиция на иллюстрации
Заводской номер детали
Название детали
1
26950025178
Перегородка
2
26950020731
Перегородка
4
26950012688
Уплотнитель
5
26950012689
Уплотнитель
9
02120000014
Болт
10
02120000127
Гайка
11
02120000626
Шайба
12
02120000619
Шайба
Дополнительная информация
×
Название:
Номер:
Примечание:
АвтоКаталог-онлайн предоставлен
Компанией АвтоСофт